ABACERIA MUNICIPAL MARKET

ARCHITECTS

BCQ arquitectura barcelona + VOL studio architecture

LOCATION

Barcelona

YEAR

2022

CLIENT

Municipal Institute of Markets of Barcelona (IMMB)

AREA

Building 14.355 m² | Public space 1.150 m²

STATUS

Under construction

COLLABORATOR

BAC Engineering - SOCOTEC (structures), PGI Engineering (MEP engineering, energy efficiency), FAHE Consulting Arquitectura (QS), ACTIO (project&construction management), Play-Time | Prompt Collective (renders)

CONTRACTOR

BUDGET

13.302.000€

The market is considered as a large square under a large roof with a high heritage value.
The proposal sets out the rehabilitation of the entire market structure as well as the recovery of the existing wooden enclosures on the side facades.
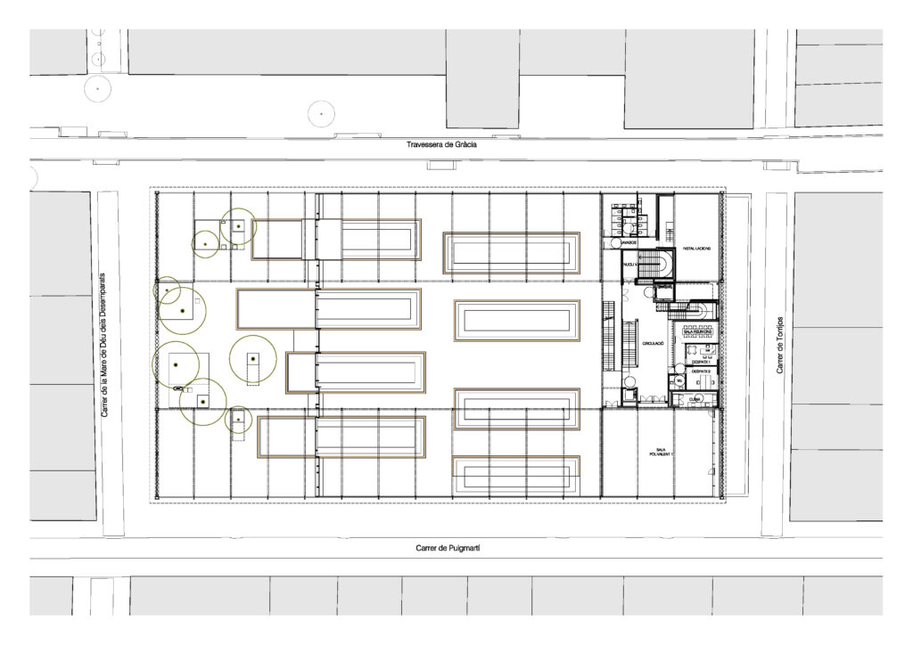
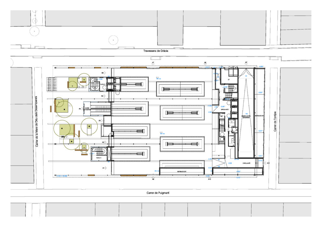
We believe it is essential that the neighborhood participates in the internal activity of the Market, that the streets are visually incorporated into the interior of the market. Thus, a glazed envelope is raised in large part of its perimeter. The layout of the interior stalls is made in the transverse direction to the transept, visually communicating the Travessera de Gracia and the Puigmartí Street.
Thus, the “Central Market Square of the Abaceria” will be incorporated into the system of squares in the neighborhood.
The stretch of the Virgen de los Desamparados street, between Travessera de Gracia and Puigmartí street, is considered the main point of access to the Market. It is in this section where a large porch is generated that reinforces the idea of ​​public space as a meeting point and scope of citizen activity.
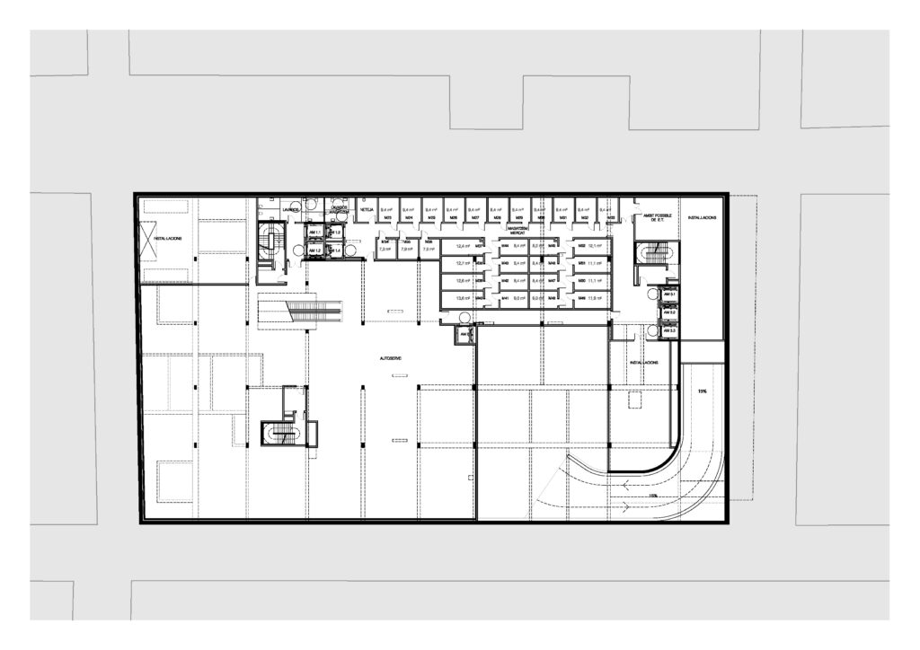
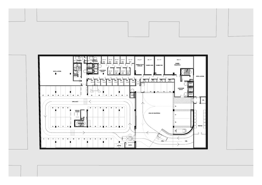
The Supermarket and the space dedicated to cooperative activities are located right on the lower level (-1 floor). In the -2 floor the large logistics area is located, with loading and unloading area, warehouses for stalls, cooperative area warehouse and waste area directly connected with the vehicular access from Travessera de Gracia. The -3 floor is entirely designed as a parking lot for both users and merchants.

FIRST PLACE IN PROJECTS COMPETITION

RELATED PROJECTS

ARCHITECTS

BCQ arquitectura barcelona + VOL studio architecture

LOCATION

Barcelona

YEAR

2022

CLIENT

Municipal Institute of Markets of Barcelona (IMMB)

AREA

Building 14.355 m² | Public space 1.150 m²

STATUS

Under construction

COLLABORATOR

BAC Engineering - SOCOTEC (structures), PGI Engineering (MEP engineering, energy efficiency), FAHE Consulting Arquitectura (QS), ACTIO (project&construction management), Play-Time | Prompt Collective (renders)

CONTRACTOR

BUDGET

13.302.000€

The market is considered as a large square under a large roof with a high heritage value.
The proposal sets out the rehabilitation of the entire market structure as well as the recovery of the existing wooden enclosures on the side facades.
We believe it is essential that the neighborhood participates in the internal activity of the Market, that the streets are visually incorporated into the interior of the market. Thus, a glazed envelope is raised in large part of its perimeter. The layout of the interior stalls is made in the transverse direction to the transept, visually communicating the Travessera de Gracia and the Puigmartí Street.
Thus, the “Central Market Square of the Abaceria” will be incorporated into the system of squares in the neighborhood.
The stretch of the Virgen de los Desamparados street, between Travessera de Gracia and Puigmartí street, is considered the main point of access to the Market. It is in this section where a large porch is generated that reinforces the idea of ​​public space as a meeting point and scope of citizen activity.
The Supermarket and the space dedicated to cooperative activities are located right on the lower level (-1 floor). In the -2 floor the large logistics area is located, with loading and unloading area, warehouses for stalls, cooperative area warehouse and waste area directly connected with the vehicular access from Travessera de Gracia. The -3 floor is entirely designed as a parking lot for both users and merchants.

FIRST PLACE IN PROJECTS COMPETITION

RELATED PROJECTS

[slide type=”image” image=”http://bcq.es/wp-content/uploads/2020/10/PAV3-01.jpg” image_alt=”” css_class=”fullscreen fit-scale-up-allowed”]

Exterior view

Sports hall and Municiapl works center
[/slide]
[slide type=”image” image=”http://bcq.es/wp-content/uploads/2020/10/PAV3-02.jpg” image_alt=”” css_class=”fullscreen fit-scale-up-allowed”]

Interior view

Sports hall and Municiapl works center
[/slide]
[slide type=”image” image=”http://bcq.es/wp-content/uploads/2020/10/PAV3-03.jpg” image_alt=”” css_class=”fullscreen fit-scale-up-allowed”]

Interior view

Sports hall and Municiapl works center
[/slide]
[slide type=”image” image=”http://bcq.es/wp-content/uploads/2020/10/PAV3-7.jpg” image_alt=”” css_class=”fullscreen fit-scale-up-allowed”]

Building scheme

Sports hall and Municiapl works center
[/slide]
[slide type=”image” image=”http://bcq.es/wp-content/uploads/2020/10/PAV3-1.jpg” image_alt=”” css_class=”fullscreen fit-scale-up-allowed”]

Ground floor

Sports hall and Municiapl works center
[/slide]
[slide type=”image” image=”http://bcq.es/wp-content/uploads/2020/10/PAV3-2.jpg” image_alt=”” css_class=”fullscreen fit-scale-up-allowed”]

First floor

Sports hall and Municiapl works center
[/slide]
[slide type=”image” image=”http://bcq.es/wp-content/uploads/2020/10/PAV3-3.jpg” image_alt=”” css_class=”fullscreen fit-scale-up-allowed”]

West elevation

Sports hall and Municiapl works center
[/slide]
[slide type=”image” image=”http://bcq.es/wp-content/uploads/2020/10/PAV3-4.jpg” image_alt=”” css_class=”fullscreen fit-scale-up-allowed”]

South elevation

Sports hall and Municiapl works center
[/slide]
[slide type=”image” image=”http://bcq.es/wp-content/uploads/2020/10/PAV3-5.jpg” image_alt=”” css_class=”fullscreen fit-scale-up-allowed”]

Longitudinal section

Sports hall and Municiapl works center
[/slide]
[slide type=”image” image=”http://bcq.es/wp-content/uploads/2020/10/PAV3-6.jpg” image_alt=”” css_class=”fullscreen fit-scale-up-allowed”]

Cross section

Sports hall and Municiapl works center
[/slide]