OFFICES IN THE HISTORIC CENTER OF BARCELONA

ARCHITECTS

BCQ arquitectura barcelona

LOCATION

Ciutat Vella, Barcelona

YEAR

2011

CLIENT

General Treasury of Social Security | Foment de Ciutat Vella. Barcelona City Council

AREA

Building 6.291 m² | Public space 2.330 m²

STATUS

Built

COLLABORATOR

Eskubi-Turró (structures), AIA Instal·lacions Arquitectòniques (MEP engineering), Isabel Fors (QS), FAHE Consulting Arquitectura (construction management), Pedro Pegenaute (photography)

CONTRACTOR

FCC CONSTRUCCIÓN, SA

BUDGET

6.942.172€

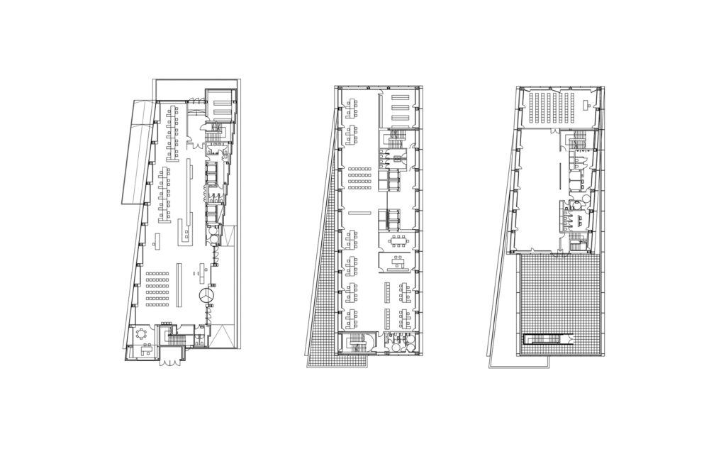
The building is situated in Ciutat Vella district. Its overall appearance is a glass box protected by a translucent metallic filter, which screens the light and the views. The new building has to be a force for the renewal in an area which has been architecturally and socially degraded.
The volume of first to fourth floors regains the alignment of the street l’Om, and creates, with the projection originated by this shift, a large porch that frames and protects the building entrance. The third volume of the fifth and sixth floors is guided by a turn in between the two previous volumes.
The need for natural light which is determined by the administrative use of the building is solved with the large windows in facade which are protected from the incidence of direct solar radiation through a continuous envelope of aluminum slats.
The use of a framed structure with pillars in facade allows open floor plans that are organized from two vertical cores, leaving the rest of the surface free. The partitioning is done through lightweight partition wall. In this way, the building allows a versatility of occupation in time.

FIRST PRIZE RESTRICTED COMPETITION
SPECIAL JURY MENTION 2013 CATALUNYA CONSTRUCCIÓ AWARDS

RELATED PROJECTS

ARCHITECTS

BCQ arquitectura barcelona

LOCATION

Ciutat Vella, Barcelona

YEAR

2011

CLIENT

General Treasury of Social Security | Foment de Ciutat Vella. Barcelona City Council

AREA

Building 6.291 m² | Public space 2.330 m²

STATUS

Built

COLLABORATOR

Eskubi-Turró (structures), AIA Instal·lacions Arquitectòniques (MEP engineering), Isabel Fors (QS), FAHE Consulting Arquitectura (construction management), Pedro Pegenaute (photography)

CONTRACTOR

FCC CONSTRUCCIÓN, SA

BUDGET

6.942.172€

The building is situated in Ciutat Vella district. Its overall appearance is a glass box protected by a translucent metallic filter, which screens the light and the views. The new building has to be a force for the renewal in an area which has been architecturally and socially degraded.
The volume of first to fourth floors regains the alignment of the street l’Om, and creates, with the projection originated by this shift, a large porch that frames and protects the building entrance. The third volume of the fifth and sixth floors is guided by a turn in between the two previous volumes.
The need for natural light which is determined by the administrative use of the building is solved with the large windows in facade which are protected from the incidence of direct solar radiation through a continuous envelope of aluminum slats.
The use of a framed structure with pillars in facade allows open floor plans that are organized from two vertical cores, leaving the rest of the surface free. The partitioning is done through lightweight partition wall. In this way, the building allows a versatility of occupation in time.

FIRST PRIZE RESTRICTED COMPETITION
SPECIAL JURY MENTION 2013 CATALUNYA CONSTRUCCIÓ AWARDS

RELATED PROJECTS

OFFICES IN THE HISTORIC CENTER OF BARCELONA
FACILITIES
OFFICES IN THE HISTORIC CENTER OF BARCELONA
FACILITIES
OFFICES IN THE HISTORIC CENTER OF BARCELONA
FACILITIES
OFFICES IN THE HISTORIC CENTER OF BARCELONA
FACILITIES
OFFICES IN THE HISTORIC CENTER OF BARCELONA
FACILITIES
OFFICES IN THE HISTORIC CENTER OF BARCELONA
FACILITIES
[slide type=”image” image=”http://bcq.es/wp-content/uploads/2020/10/PAV3-01.jpg” image_alt=”” css_class=”fullscreen fit-scale-up-allowed”]

Exterior view

Sports hall and Municiapl works center [/slide] [slide type=”image” image=”http://bcq.es/wp-content/uploads/2020/10/PAV3-02.jpg” image_alt=”” css_class=”fullscreen fit-scale-up-allowed”]

Interior view

Sports hall and Municiapl works center [/slide] [slide type=”image” image=”http://bcq.es/wp-content/uploads/2020/10/PAV3-03.jpg” image_alt=”” css_class=”fullscreen fit-scale-up-allowed”]

Interior view

Sports hall and Municiapl works center [/slide] [slide type=”image” image=”http://bcq.es/wp-content/uploads/2020/10/PAV3-7.jpg” image_alt=”” css_class=”fullscreen fit-scale-up-allowed”]

Building scheme

Sports hall and Municiapl works center [/slide] [slide type=”image” image=”http://bcq.es/wp-content/uploads/2020/10/PAV3-1.jpg” image_alt=”” css_class=”fullscreen fit-scale-up-allowed”]

Ground floor

Sports hall and Municiapl works center [/slide] [slide type=”image” image=”http://bcq.es/wp-content/uploads/2020/10/PAV3-2.jpg” image_alt=”” css_class=”fullscreen fit-scale-up-allowed”]

First floor

Sports hall and Municiapl works center [/slide] [slide type=”image” image=”http://bcq.es/wp-content/uploads/2020/10/PAV3-3.jpg” image_alt=”” css_class=”fullscreen fit-scale-up-allowed”]

West elevation

Sports hall and Municiapl works center [/slide] [slide type=”image” image=”http://bcq.es/wp-content/uploads/2020/10/PAV3-4.jpg” image_alt=”” css_class=”fullscreen fit-scale-up-allowed”]

South elevation

Sports hall and Municiapl works center [/slide] [slide type=”image” image=”http://bcq.es/wp-content/uploads/2020/10/PAV3-5.jpg” image_alt=”” css_class=”fullscreen fit-scale-up-allowed”]

Longitudinal section

Sports hall and Municiapl works center [/slide] [slide type=”image” image=”http://bcq.es/wp-content/uploads/2020/10/PAV3-6.jpg” image_alt=”” css_class=”fullscreen fit-scale-up-allowed”]

Cross section

Sports hall and Municiapl works center [/slide]