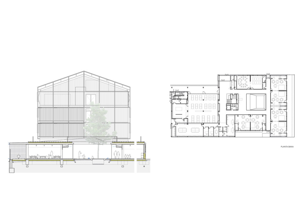
CAL MAIOL SCHOOL-INSTITUTE
CULTURAL/EDUCATIONAL
CAL MAIOL SCHOOL-INSTITUTE
CULTURAL/EDUCATIONAL
[slide type=”image” image=”http://bcq.es/wp-content/uploads/2020/10/PAV3-01.jpg” image_alt=”” css_class=”fullscreen fit-scale-up-allowed”]
ARCHITECTS
BCQ arquitectura barcelona
LOCATION
Sants-Montjuïc, Barcelona
YEAR
2023
CLIENT
Barcelona d'Infraestructures Municipals | Consorci d'Educació de Barcelona
AREA
Building 5.905 m² | Public space 3.183 m²
STATUS
Construction project
COLLABORATOR
OTHER Structures (structures), PGI Engineering (MEP engineering), Dalmau-Morros (QS), Play-Time (renders)
CONTRACTOR
BUDGET
11.945.000€
























ARCHITECTS
BCQ arquitectura barcelona
LOCATION
Sants-Montjuïc, Barcelona
YEAR
2023
CLIENT
Barcelona d'Infraestructures Municipals | Consorci d'Educació de Barcelona
AREA
Building 5.905 m² | Public space 3.183 m²
STATUS
Construction project
COLLABORATOR
OTHER Structures (structures), PGI Engineering (MEP engineering), Dalmau-Morros (QS), Play-Time (renders)
CONTRACTOR
BUDGET
11.945.000€























