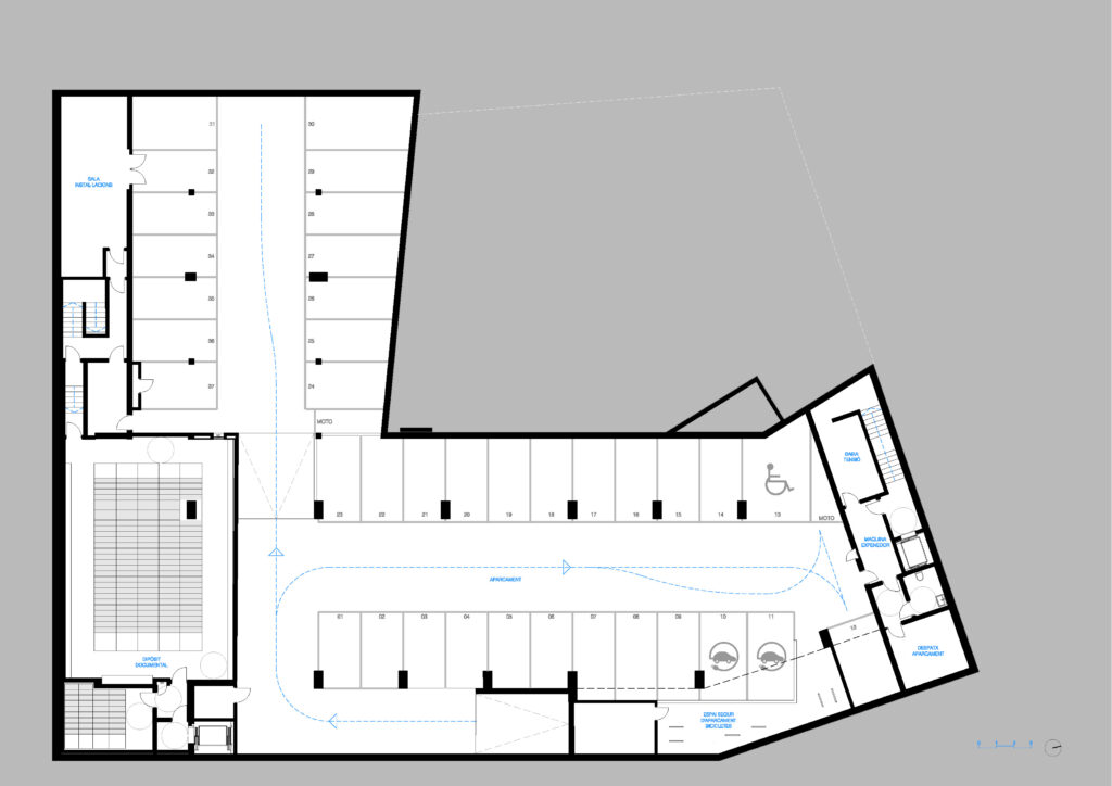
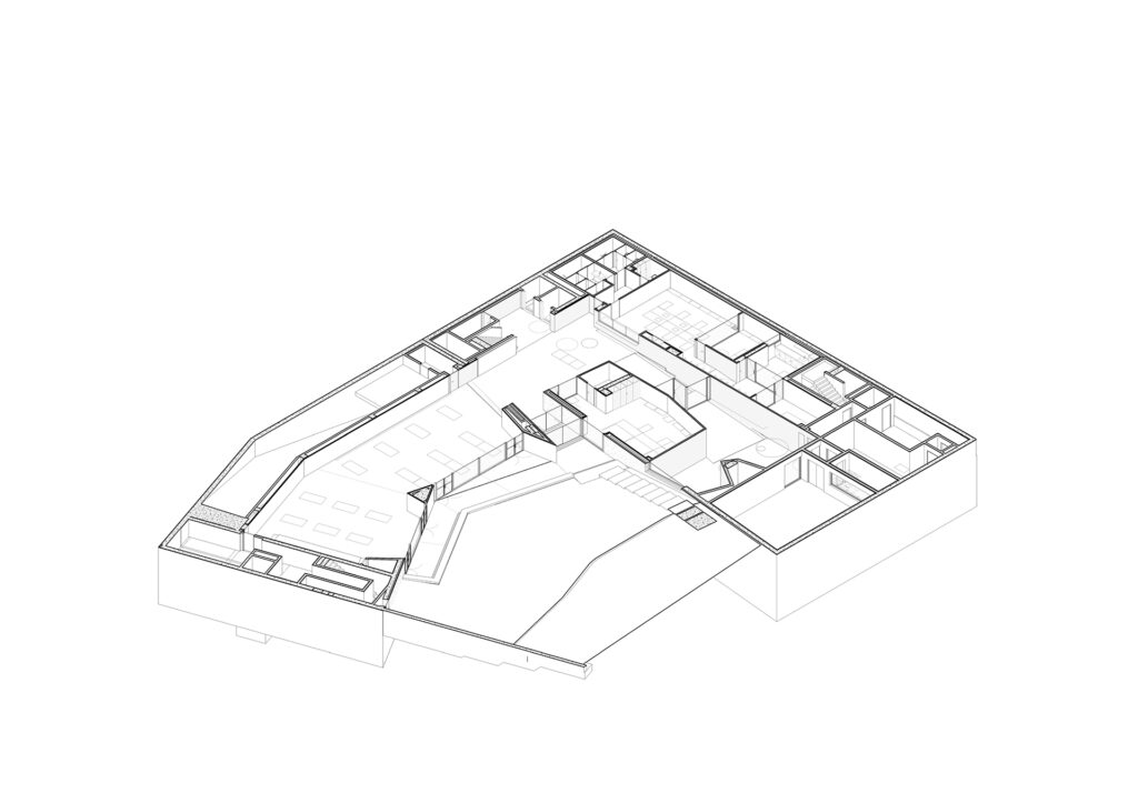
PILARÍN BAYÉS LIBRARY
CULTURAL/EDUCATIONAL
PILARÍN BAYÉS LIBRARY
[slide type=”image” image=”http://bcq.es/wp-content/uploads/2020/10/PAV3-01.jpg” image_alt=”” css_class=”fullscreen fit-scale-up-allowed”]
ARCHITECTS
BCQ arquitectura barcelona + Toni Casamor
LOCATION
Vic, Barcelona
YEAR
2022
CLIENT
Vic City Council | Barcelona Provincial Council
AREA
Building 5.168 m² | Public space 542 m²
STATUS
Built
COLLABORATOR
BAC Engineering (structures), AIA Instal·lacions Arquitectòniques (MEP engineering), FAHE Consulting Arquitectura (QS), Adrià Goula (photography)
CONTRACTOR
ARCADI PLA SA
BUDGET
6.458.013 €



















ARCHITECTS
BCQ arquitectura barcelona + Toni Casamor
LOCATION
Vic, Barcelona
YEAR
2022
CLIENT
Vic City Council | Barcelona Provincial Council
AREA
Building 5.168 m² | Public space 542 m²
STATUS
Built
COLLABORATOR
BAC Engineering (structures), AIA Instal·lacions Arquitectòniques (MEP engineering), FAHE Consulting Arquitectura (QS), Adrià Goula (photography)
CONTRACTOR
ARCADI PLA SA
BUDGET
6.458.013 €


















