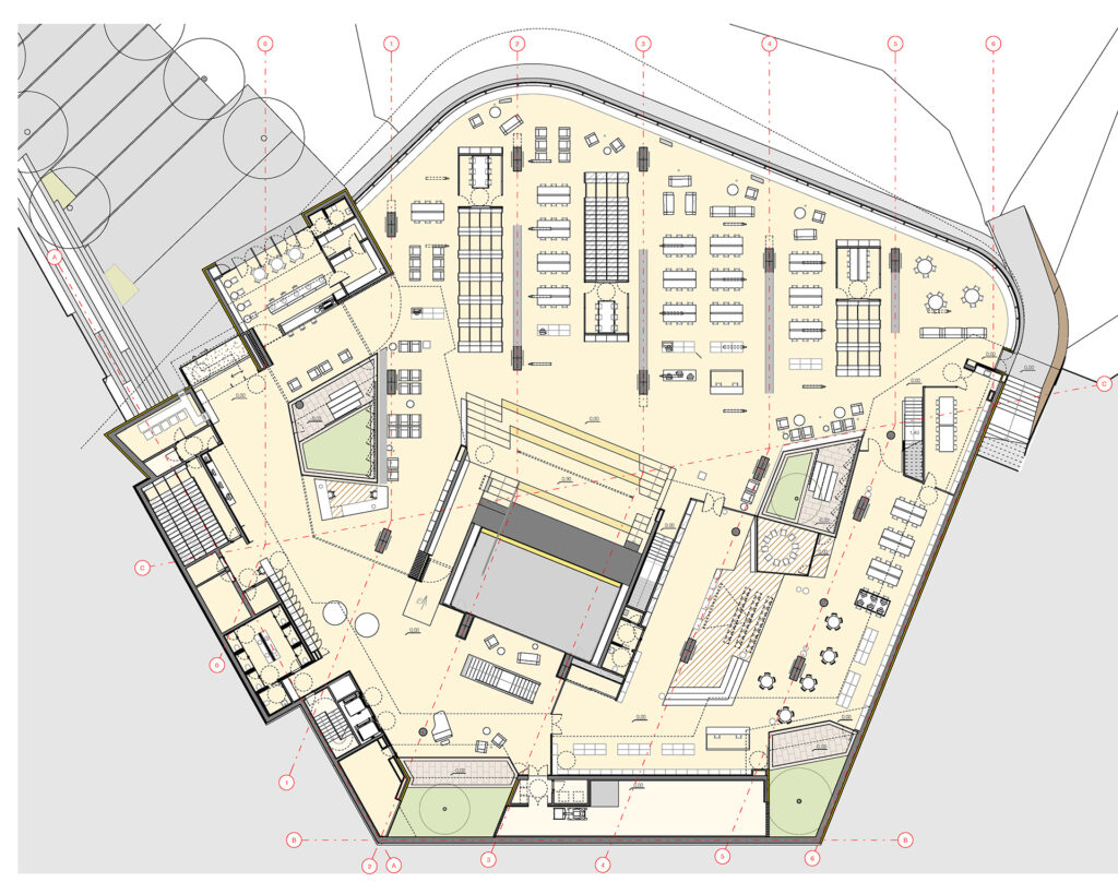
GABRIEL FERRATER LIBRARY
CULTURAL/EDUCATIONAL
GABRIEL FERRATER LIBRARY
CULTURAL/EDUCATIONAL
GABRIEL FERRATER LIBRARY
CULTURAL/EDUCATIONAL
[slide type=”image” image=”http://bcq.es/wp-content/uploads/2020/10/PAV3-01.jpg” image_alt=”” css_class=”fullscreen fit-scale-up-allowed”]












