10 APARTAMENTOS Y PARKING | VILLAR

UBICACIÓN

Barcelona

AÑO

2021

CLIENTE

I-now Crawley Market, SL

SUPERFICIE

1.441,11 m²

ESTADO

En construcción

CONTRACTOR

BUDGET

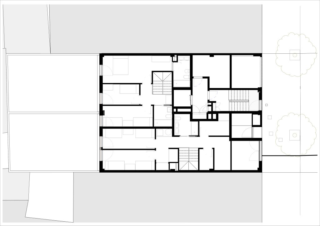
El proyecto contempla el diseño y construcción de un edificio plurifamiliar de planta baja (más Altillo), tres plantas piso y una planta sótano.
Se propone un volumen unitario y sencillo en la totalidad de la parcela edificable dejando un patio privativo en la parte posterior de la parcela.
En relación al exterior la fachada a la calle de Villar está alineada a vial y se respeta la posición del arbolado existente. El acceso se realiza por el eje central del edificio y la escalera está vinculada al exterior, garantizando la ventilación natural. También dispone de cancel previo.
En planta baja se organiza la portería con espacio adosado para instalaciones.
Los vehículos acceden desde el extremo más bajo de la parcela en el sótano – aparcamiento.

PROYECTOS RELACIONADOS

UBICACIÓN

Barcelona

AÑO

2021

CLIENTE

I-now Crawley Market, SL

SUPERFICIE

1.441,11 m²

ESTADO

En construcción

CONTRACTOR

BUDGET

El proyecto contempla el diseño y construcción de un edificio plurifamiliar de planta baja (más Altillo), tres plantas piso y una planta sótano.
Se propone un volumen unitario y sencillo en la totalidad de la parcela edificable dejando un patio privativo en la parte posterior de la parcela.
En relación al exterior la fachada a la calle de Villar está alineada a vial y se respeta la posición del arbolado existente. El acceso se realiza por el eje central del edificio y la escalera está vinculada al exterior, garantizando la ventilación natural. También dispone de cancel previo.
En planta baja se organiza la portería con espacio adosado para instalaciones.
Los vehículos acceden desde el extremo más bajo de la parcela en el sótano – aparcamiento.

RELATED PROJECTS